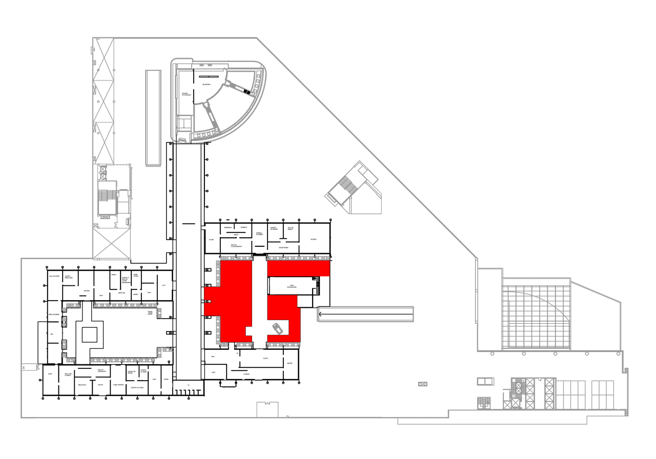
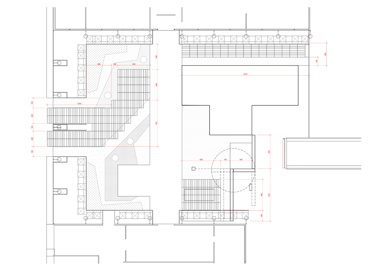
Jardim Rupestre
Projeto desenvolvido para a mostra CasaCor Minas Gerais.
21260
wp-singular,portfolio_page-template-default,single,single-portfolio_page,postid-21260,wp-theme-stockholm,wp-child-theme-stockholm-child,qi-blocks-1.4.9,qodef-gutenberg--no-touch,stockholm-core-2.4.9,select-child-theme-ver-1.0.0,select-theme-ver-9.14.4,ajax_fade,page_not_loaded,,qode_menu_,wpb-js-composer js-comp-ver-8.7.2,vc_responsive

Jardim Rupestre

Projeto desenvolvido em parceria com os arquitetos Haiko Cirne Sinnema, Marcelo Duarte, a paisagista Elcy Luna Celani e os designers Daniel Gonçalves, Lucas Carvalho e Matheus Dias (Estúdio Vorko) para a mostra CasaCor Minas Gerais.

Colaboração: Paula Dante, Breno Mayer, Oreades
Data: Setembro 2012

Local: Belo Horizonte_MG
Links: Archdaily

Category

Paisagismo