Casa Vale do Sol
21429
wp-singular,portfolio_page-template-default,single,single-portfolio_page,postid-21429,wp-theme-stockholm,wp-child-theme-stockholm-child,qi-blocks-1.4.9,qodef-gutenberg--no-touch,stockholm-core-2.4.9,select-child-theme-ver-1.0.0,select-theme-ver-9.14.4,ajax_fade,page_not_loaded,,qode_menu_,wpb-js-composer js-comp-ver-8.7.2,vc_responsive

Casa Vale do Sol

Área : 260m2

Local – Vale do Sol . Nova Lima – Minas Gerais / Brasil

Projeto : 2009

Obra : 2010 – 2012

Cálculo estrutural: Elísio Augusto

Elétrico / Hidráulico: Nilton Abdala

Fotografía – Gabriel Castro (Reverbo)

 

A horta que servia o sítio da família durante algumas décadas junto de um estreito galinheiro no qual corriam crianças para todos os lados, juntos dos pintos, galinhas e um frondoso galo foi o ponto inicial da concepção dessa casa.

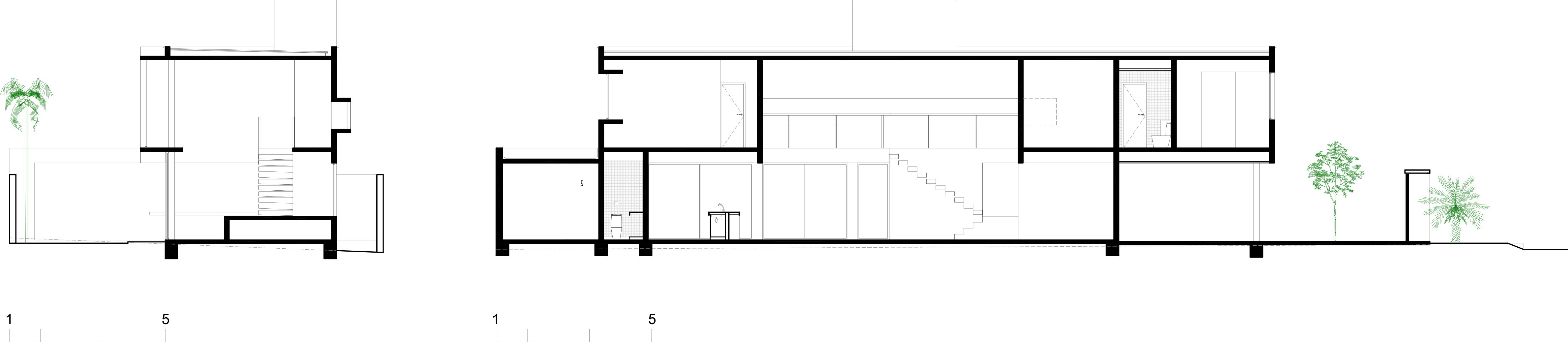
No desenvolvimento do projeto, foram levados em conta alguns elementos que o sítio sugeriu. Daí, as generosas aberturas para Leste e Sul que visam aproveitar a paisagem exuberante do Vale do Sol e aproveitam uma melhor iluminação natural.

A implantação do corpo da residência na lateral Oeste contribui para ampliar a área livre do terreno, deixando um respiro em relação ao vizinho e, consequentemente um jardim amplo e coerente para a dimensão da obra.

Os espaços internos se comunicam visualmente com o jardim e o vazio central e, juntamente com a passarela, articula as duas zonas íntimas do volume superior.

 

Category

Habitação