Casa Pasárgada
22046
wp-singular,portfolio_page-template-default,single,single-portfolio_page,postid-22046,wp-theme-stockholm,wp-child-theme-stockholm-child,qi-blocks-1.4.9,qodef-gutenberg--no-touch,stockholm-core-2.4.9,select-child-theme-ver-1.0.0,select-theme-ver-9.14.4,ajax_fade,page_not_loaded,,qode_menu_,wpb-js-composer js-comp-ver-8.7.2,vc_responsive

Casa Pasárgada

O poeta brasileiro Manuel Bandeira descreve Pasárgada como uma paisagem fabulosa, uma alegoria do paraíso que suscitou sua imaginação para um escape do tédio e desânimo em busca do mito da felicidade.

Em um contexto semelhante, do desejo dos clientes em escapar da vida urbana e estabelecer um contato mais próximo com a natureza, projetamos esta residência.

O volume desenvolvido conforma um monolito neutro e sóbrio que dá acesso aos visitantes e veículos. Ao adentrar a casa, há uma clara intenção de relacionar os espaços internos com as vistas e paisagem existentes no contexto onde a obra será edificada.

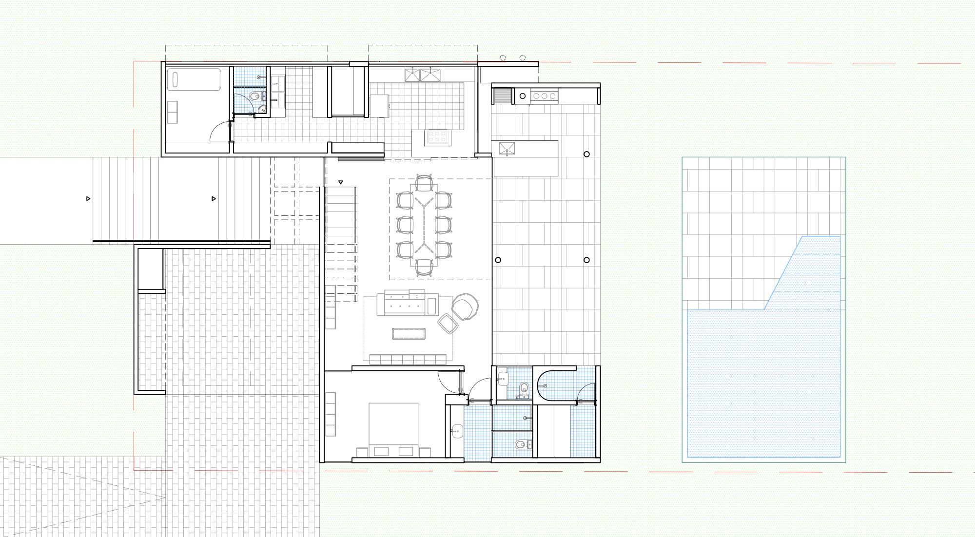
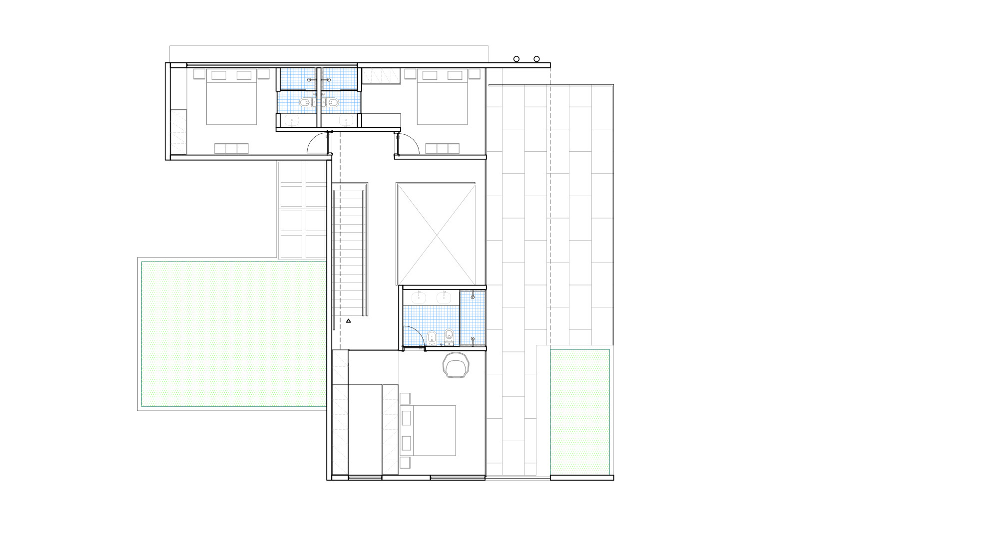
No piso inferior foram dispostos dois blocos com uma vazio central: de um lado a cozinha, churrasqueira e dependências de serviço e no lado oposto um quarto de apoio, banheiro e sauna. No piso superior foram projetados 3 suítes que se comunicam através de passarelas e do terraço superior.

Apesar da vista predominante não ter uma orientação adequada para as visadas, os generosos terraços e marquises visam proteger as fachadas translúcidas de modo a assegurar um conforto ambiental correto aos ambientes projetados.

A estrutura em concreto aparente e vedação em alvenaria de tijolos cerâmicos busca e valorizar os materiais em seu estado original e respeitar seu envelhecimento além da sua evolução no contexto inserido, sem optar pelo uso de adornos ou revestimentos.

_

Local: Bairro Pasárgada, Nova Lima – MG

Área:320m2

Colaboração: Gabriel Nardelli

Category

Habitação