Projetos
Sobre
Diário
Contato
Projetos
Sobre
Diário
Contato
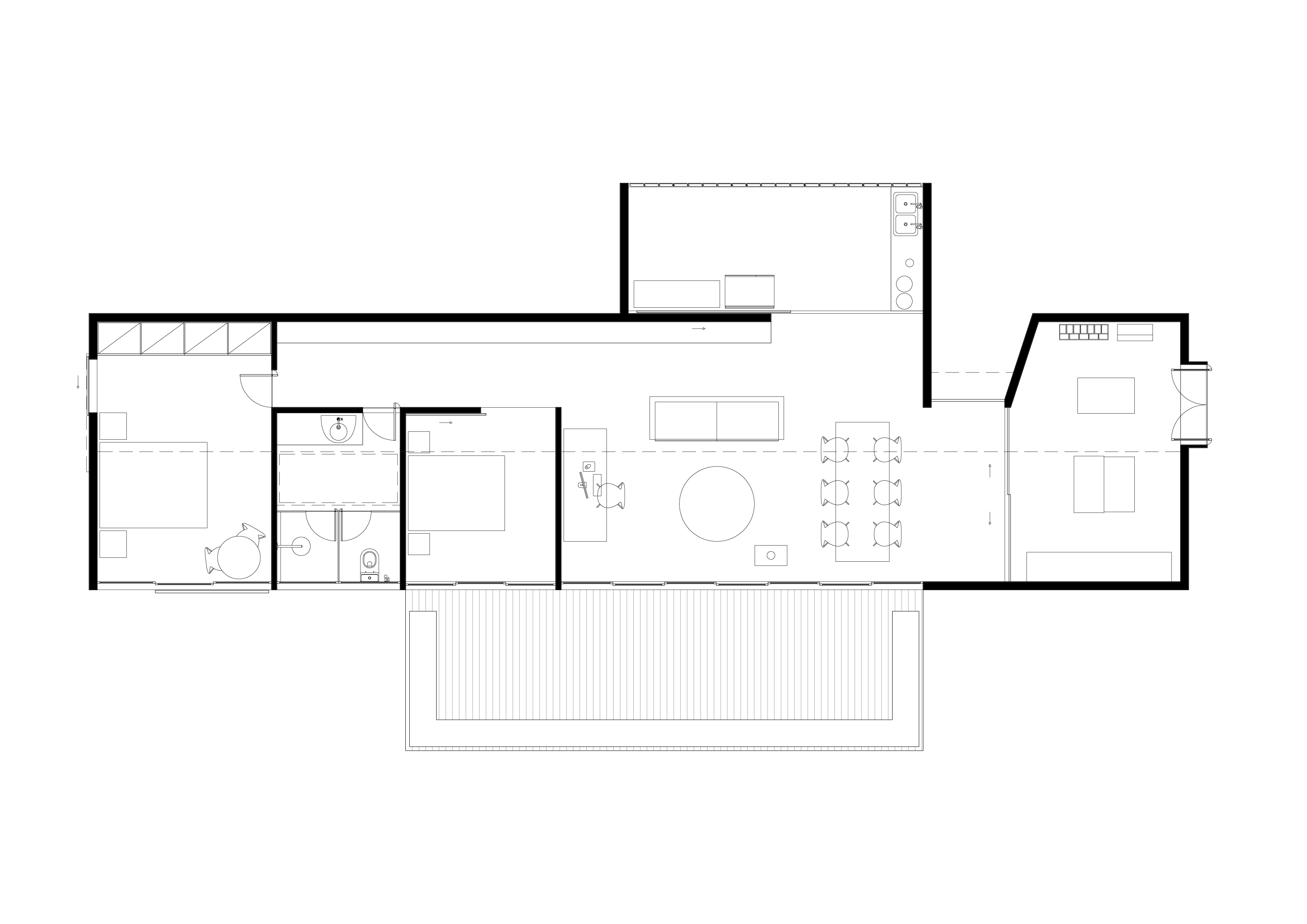
Casa Cláudio Moura Castro
21395
wp-singular,portfolio_page-template-default,single,single-portfolio_page,postid-21395,wp-theme-stockholm,wp-child-theme-stockholm-child,qi-blocks-1.4.9,qodef-gutenberg--no-touch,stockholm-core-2.4.9,select-child-theme-ver-1.0.0,select-theme-ver-9.14.4,ajax_fade,page_not_loaded,,qode_menu_,wpb-js-composer js-comp-ver-8.7.2,vc_responsive
Casa Cláudio Moura Castro
Proposta desenvolvida em parceria com
Rizoma Arquitetura
Category
Habitação