apto Serramares
22366
wp-singular,portfolio_page-template-default,single,single-portfolio_page,postid-22366,wp-theme-stockholm,wp-child-theme-stockholm-child,qi-blocks-1.4.9,qodef-gutenberg--no-touch,stockholm-core-2.4.9,select-child-theme-ver-1.0.0,select-theme-ver-9.14.4,ajax_fade,page_not_loaded,,qode_menu_,wpb-js-composer js-comp-ver-8.7.2,vc_responsive

apto Serramares

 

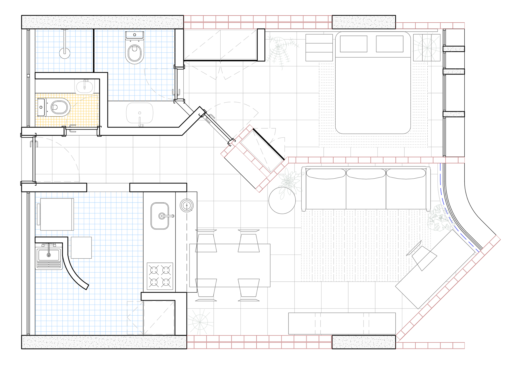
O projeto de interiores consistiu na organização de um local de descanso, estudos e lazer para um jovem advogado/ciclista nos 44m2 do apartamento.

 

A suíte abriga o local de descanso e, nesta, foram inseridas cores sóbrias e iluminação indireta para conformar uma área de refúgio e intimidade.

Já o local de estudos/lazer, configurado pela sala, conta com cores vivas, vegetação e elementos funcionais para atender às diversas atividades que acontecem simultaneamente no ambiente. A estratégia também foi de valorizar os materiais da arquitetura existente.

 

Os mobiliários de marcenaria e serralheria foram desenhados de modo que o próprio morador pudesse executar na oficina de um amigo e, que fosse adaptável para outros arranjos e espaços. Procuramos indicar a utilização de objetos e adornos desenhados por amigos e profissionais próximos, incentivando o design local.

 

Arquitetura: Marcos Franchini e Nattalia Bom Conselho

Colaboração: Gabriel Nardelli

Belo Horizonte – MG

Área: 44m2

Projeto: março 2017

Category

Habitação